Array ( [cat_id] => 34 [cat_name] => 电能质量治理 [unique_id] => diannengzhiliang [parent_id] => 0 [url] => http://www./product/diannengzhiliang )
产品概述
ZHXK-SVG-GL系列静止无功发生器柜并联在电网上,通过调节电流的幅值和相位,迅速吸收或者发出系统所需的无功功率,实现快速动态无功调节的作用,不仅可以跟踪补偿冲击型负载的冲击电流,而且可以对谐波电流进行补偿。作为有源型补偿装置领域最新技术的代表,SVG并联于电网中,相当于一个可控的无功电流源,其无功电流可以灵活控制,自动补偿系统所需的无功功率,一方面有效解决了谐波无功干扰并联电容器透切补偿问题,另一方面可根据用户实际要求治理谐波,清洁电网。
性能特点
动态补偿:更高的响应速度,使其对电压闪边复杂的系统补偿效果更好,可根据系统变化情况发出、吸收无功,避免了无功倒送的情况。
控制方案:每个单元内置16个DO端口,可联机控制普通电容补偿方案,或RS485通讯接口控制智能电容器补偿方案;
结构设计:整机模块化结构,布局空间合理、紧凑,兼容机架式、插拔式,便于组装和现场安装,便于现场检修、设备增容。
运行稳定:采用三电平逆变器技术,能效高,同时设备补偿精度高,响应速度快,总响应时间<8ms,输出无功电流不受母线电压的影响;
线路调节:能够解决系统三相负荷不平衡的问题,不仅不产生谐波,而且能在补偿无功功率的同时动态的补偿谐波;
保护功能:只补偿基波无功电流,系统谐波不会对设备造成损坏。同时避免了串联电抗器的电容器组可能造成的谐波放大,防止系统其他设备因谐波过电压而损坏。
安装检修:支持多机并联,可通过不同单元组合灵活满足用户现场需求;便于整柜组装以及现场安装,同时很大程度提高了现场检修、设备增容的工作效率。
方案原理
设计依据
GB12325-90《电能质量 供电电压允许偏差》
GB/T 14549-93《电能质量 公用电网谐波》
GB/T 15543-1995《电能质量 三相电压允许不平衡度》
GB 12326-2000《电能质量电压允许波动和闪变》
GB11463-89《电子测量仪器可靠性试验》
技术参数
|
工作电压 |
400V/690V(-20%~+15%) |
|
线制 |
三相四线 |
|
容量 |
300kvar/600kvar |
|
工作频率 |
50Hz(-10%~+10%) |
|
补偿谐波 |
2-13次(额定电流的50%) |
|
谐波滤除率 |
>97% |
|
补偿三相不平衡 |
100%不平衡完全补偿 |
|
全响应时间 |
<10ms |
|
输出电流畸变率 |
≤3%,额定容量下输出电流的总谐波畸变率 |
|
响应时间 |
<15ms |
|
功率因数校正 |
-1到1可调 |
|
并联运行 |
最大可8个模块并联 |
|
有功损耗 |
<2% |
|
保护功能 |
过压、欠压、过热、过流、短路等保护 |
|
CT变比范围 |
150:5~2000:5 |
|
监控 |
支持各模块独立监控/整机集中监控 |
|
通信 |
RS232、485、Modbus协议、TCP/IP可选 |
|
防护等级 |
IP20(更高防护等级可定制) |
|
冷却方式 |
智能风冷 |
应用环境
本产品工作场所海拔不超过1000米,环境温度-20℃ ~ +40℃,相对湿度:日平均不大于95%,月平均不大于90%;大气压力:79.5Kpa ~ 106KPa。
本产品运行场所应具备无有害气体、可燃气体、蒸汽等污染,无导电性或者爆炸性尘埃,运行场所应无经常性的剧烈机械振动。
本产品户内使用运行,如果在特殊情况下户外使用,需加装保护壳,并参考相关标准保证保护壳的防护等级。
本产品避免长期在潮湿环境中放置,如受潮或者凝露,为避免短路,切忌第一时间通电试验,需在专业工程师指导下采取正确方法措施后进行故障排除。
型号含义
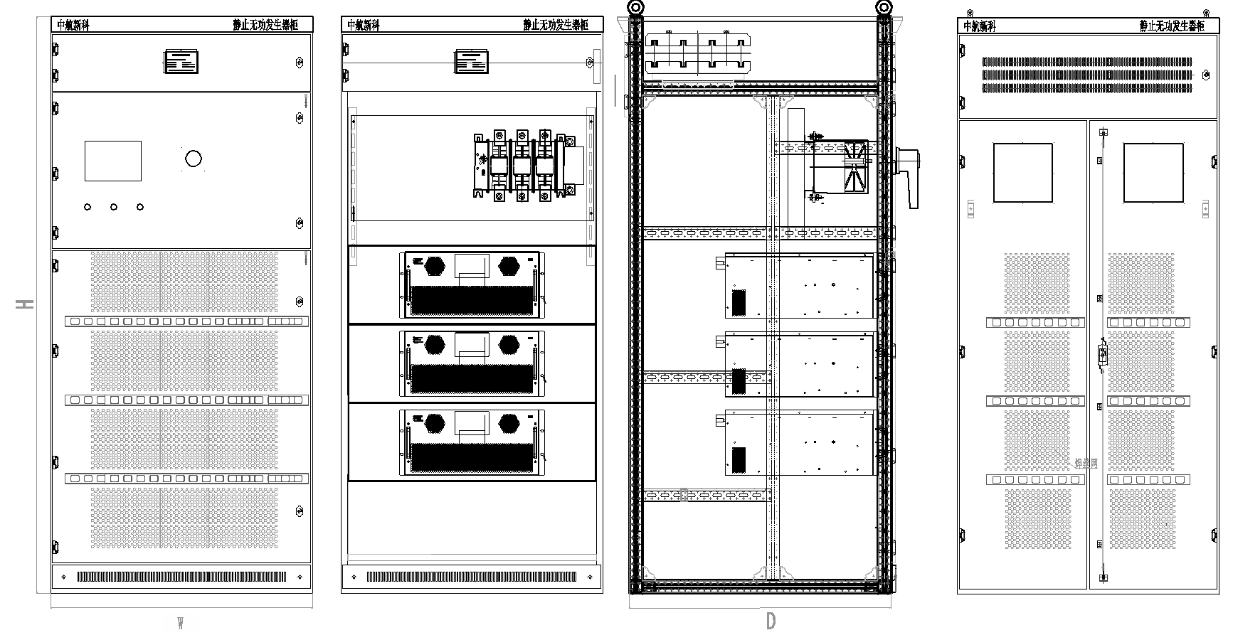
外观结构
选型参考
|
型号 |
容量分配(A) |
模块数量 |
模块结构 |
外形尺寸 |
|
ZHXK-SVG-50(50)/0.4-MJ-GL |
50 |
1 |
机架式 |
600*800*2200 800*800*2200 1000*800*2200 |
|
ZHXK-SVG-75(75)/0.4-MJ-GL |
75 |
1 |
机架式 |
|
|
ZHXK-SVG-100(100)/0.4-MJ-GL |
100 |
1 |
机架式 |
|
|
ZHXK-SVG-150(150)/0.4-MJ-GL |
150 |
1 |
机架式 |
|
|
ZHXK-SVG-200(100+100)/0.4-MJ-GL |
100+100 |
2 |
机架式 |
|
|
ZHXK-SVG-250(100+100+150)/0.4-MJ-GL |
250 |
3 |
机架式 |
|
|
ZHXK-SVG-300(100+100+100)/0.4-MJ-GL |
300 |
3 |
机架式 |
|
|
ZHXK-SVG-400(100+100+100+100)/0.4-MJ-GL |
400 |
4 |
机架式 |
|
|
ZHXK-SVG-450(150+150+150)/0.4-MJ-GL |
450 |
3 |
机架式 |
|
|
ZHXK-SVG-500(100+100+150+150)/0.4-MJ-GL |
500 |
4 |
机架式 |
订货须知
电力系统图;
装机容量;
控制组合(单柜/主辅柜)
采样极相(电压/电流)
控制器安装位置(模块/盘柜)
安装方式(框架式/立式)
负载性质;
特殊要求注明;